Wettbewerb Feuerwehr Südkirchen

Architektur, Konzept, Wettbewerbe

WETTBEWERB ZUM NEUBAU EINES FEUERWEHRGERÄTEHAUSES
in Nordkirchen, Ortsteil Südkirchen

Leitidee/ Städtebauliche Einbindung

Der Neubau des Feuerwehrgerätehauses setzt mit seiner einprägsamen Gestalt des kompakten Baukörpers mit integriertem Übungsturm einen neuen städtebaulichen Akzent mit Fernwirkung am nördlichen Eingangstor von Südkirchen.
Dabei richtet sich der Turm mit seinen prägnanten Übungsfenstern zur Münsterstraße und dem dahinter liegenden Ortsteil aus. Auf dieser Seite des Gebäudes liegen auch die Aufenthaltsräume des Gebäudes und präsentieren sich mit ihren großen liegenden Fensterformaten zum Ort hin. Dies kann als freundliche und selbstbewusste Geste des neuen Standortes der Freiwilligen Feuerwehr gelesen werden.

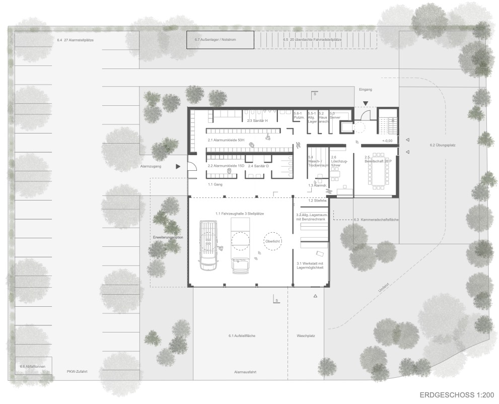
Das kubische Gebäude platziert sich funktional mit der Fahrzeughalle und dem zugehörigen Alarmhof parallel zur Straße Im Holt, so dass ein direktes Ausrücken nach Nordwesten auf Im Holt im Alarmfall möglich ist. Die Alarmstellplätze werden hinter dem Feuerwehrgerätehaus und der Alarmausfahrt verortet mit direkter Anbindung an den Alarmzugang für die Kamerad:innen auf der Ostseite des Gebäudes.

Das Feuerwehrhaus ist ringsum frei zugänglich und kann von den Löschgruppenfahrzeugen bei Übungszwecken vollständig umfahren werden.
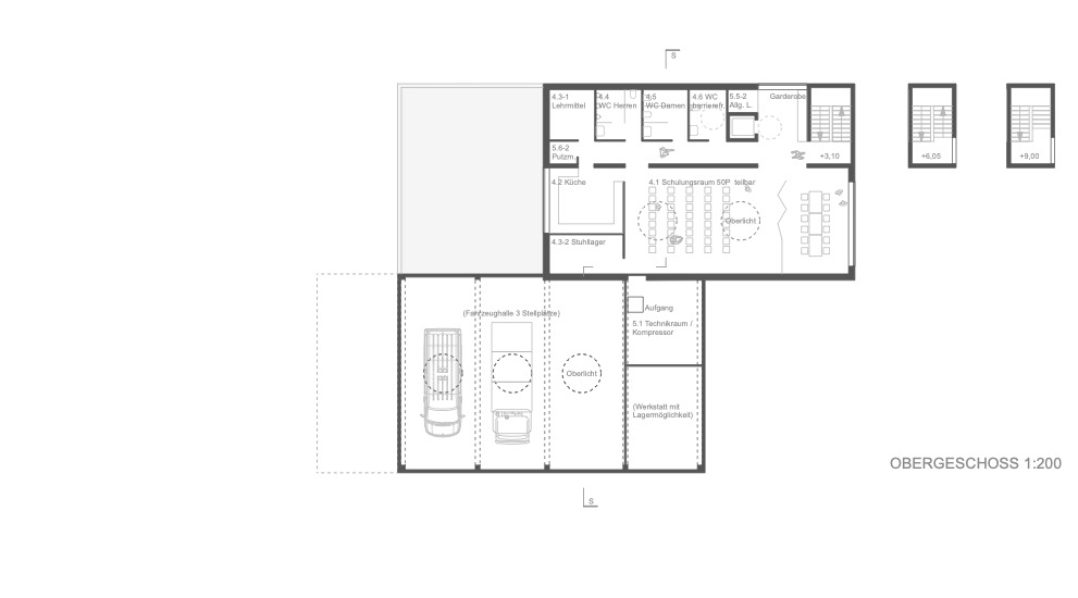
Ein Fuß- und Radweg schafft eine Kurzverbindung vom Ort zum Feuerwehrgerätehaus über die Münsterstraße. Hier können auch die im rückwärtigen/südlichen Bereich des Gebäudes platzierten Fahrradstellplätze direkt erreicht werden. Der Turm markiert den Eingang zum Schulungsbereich und dem Bereitschaftsraum.

Architektonisches Konzept

Das Gebäude besteht aus zwei gegeneinander verschobenen Quadern, die im Erdgeschoss durch den Alarmgang verbunden werden. Zur Straße hin befindet sich eingeschossig die hohe Fahrzeughalle und die Werkstatt mit Lager. Sie bildet mit den großen Rolltoren das eine wichtige Gesicht des Gebäudes aus und trägt seine innere Nutzung nach außen. Der hintere Quader beherbergt auf zwei Geschossen im Erdgeschoss die Alarmumkleiden, das Büro des Löschzugführers und den Kameradschaftsraum, im oberen Geschoss den Schulungsbereich. Im Übungsturm im südwestlichen Teil des Feuerwehrgerätehauses befindet sich sowohl die Erschließungstreppe zum Obergeschoss als auch darüber die Übungsflächen mit Fenstern in den geforderten Höhen. Die Gebäudeteile verschmelzen dabei nicht zuletzt aufgrund der durchlaufenden Stülpschalung elegant zu einem homogenen und funktionalen Gebäude mit prägnanter Kontur.

Auf der Südseite liegen die fensterlosen Umkleideräume. Die nach Norden und Osten orientierten Aufenthaltsräume öffnen sich mit großen Fensterbändern, lassen einerseits den Außenraum ins Gebäude hineindiffundieren und strahlen andererseits nach außen Offenheit und Transparenz aus. Diese Fassaden bilden zusammen mit dem Turm und seinen markanten Übungsöffnungen das zweite charakteristische Gesicht des Gebäudes.

Große Oberlichter versorgen die Fahrzeughalle und den Schulungsbereich mit Tageslicht.

Material und Konstruktion

Das Feuerwehrgerätehaus ist als Holzelementbau konzipiert. Es entsteht hier ein markanter und monolithischer Baukörper, der mit seiner homogenen, umlaufenden gräulichen Stülpschalung ein prägnantes Beispiel zeitgenössischen regionalen Bauens zeichnet.

Die wenigen großen, gezielt gesetzten Fensterbänder werden aus hochwertigen, langlebigen und pflegeleichten messingfarbenen Alufensterprofilen hergestellt. Auch die großen, das Gesicht des Feuerwehrhauses prägenden Rolltore der Halle und der Werkstatt sind aus demselben Material und bilden einen farblich harmonischen Materialkontrast zu der Patina bildenden, silbrigen Holzschalung der Fassaden. Die eingeschossige Halle besteht aus einem offen sichtbaren Holztragwerk. Der zweigeschossige hintere Gebäudeteil wird aus Holztafelwänden gefertigt. Die Dächer werden als Flachdächer ausgebildet und mit PV-Elementen bestückt.

Die Wandbekleidungen innen können aus sichtbaren, zementgebundenen Spanplatten hergestellt werden. Sie passen von ihren bauphysikalischen Eigenschaften sehr gut in das Konzept des Holzbaus, sind robust und mit einer hellen Lasur versehen eine haptisch wie optisch schöne Alternative zur Standard-GK-Wand. Der Boden ist ein langlebiger, sichtbarer flügelgeglätteter Weißzement-Heizestrich mit hoher gestalterischer Qualität. Auf eine weitere Bodenbelagsschicht kann ohne atmosphärische Abstriche komplett verzichtet werden.

Energiekonzept

Entsprechend dem Suffizienzgedanken des kreislaufgerechten Bauens versucht das Gebäude sich getreu dem Motto „So viel wie nötig, so wenig wie möglich“ auf das Wesentliche zu konzentrieren und das möglichst effizient und konsistent.
Der geplante Holzelementbau punktet mit einem hohen Vorfertigungsgrad und einer damit einhergehenden kurzen Bauzeit. Daneben bietet er den großen Vorteil des nachwachsenden heimischen Baustoffes, das CO2 weitestgehend bindet. Der hohe Wärmeschutz der Konstruktion mit recycelter Zelluslose-Dämmung macht das Gebäude gerade im Zusammenspiel mit der niedertemperierten Erdwärmepumpe und den PV-Elementen auf dem Dach zu einem zeitgemäßen, energiesparenden und kreislauffähigen Gebäude. Die gewählte leichte Bauweise wird mit den schweren Materialien Zellulose, Zementspanplatte, Betonsohle und Zementestrich kombiniert, so dass ein ausgeglichenes Klima im Innenraum entsteht. Anstelle von Materialverschwendung durch unnötige Verbundschichten auf Wänden und Böden schaffen langlebige Sichtkonstruktionen ein Höchstmaß an Konsistenz.

In den Alarmumkleiden und Sanitärbereichen wird aufgrund der nur punktuellen Nutzung und aus Sichtschutzgründen auf Fenster verzichtet zugunsten einer sowohl ökonomisch als auch ökologisch höchst effizienten Gebäuderückseite. Die Lüftungsanlage mit Wärmerückgewinnung sorgt für eine Grundlüftung ohne Energieverluste. Sie ist Teil eines hybriden zu entwickelnden Lüftungskonzeptes. Das Brauchwasser wird an Sonnentagen von der Solarthermieanlage erwärmt. Die PV-Anlage wird mit einem Speicher versehen, so dass die gewonnene Sonnenenergie bedarfsorientiert genutzt werden kann.

Wettbewerb
 2023 
Entwurf
 Katharina Jester 
 Andreas Ressel
Modell
 Andreas Ressel